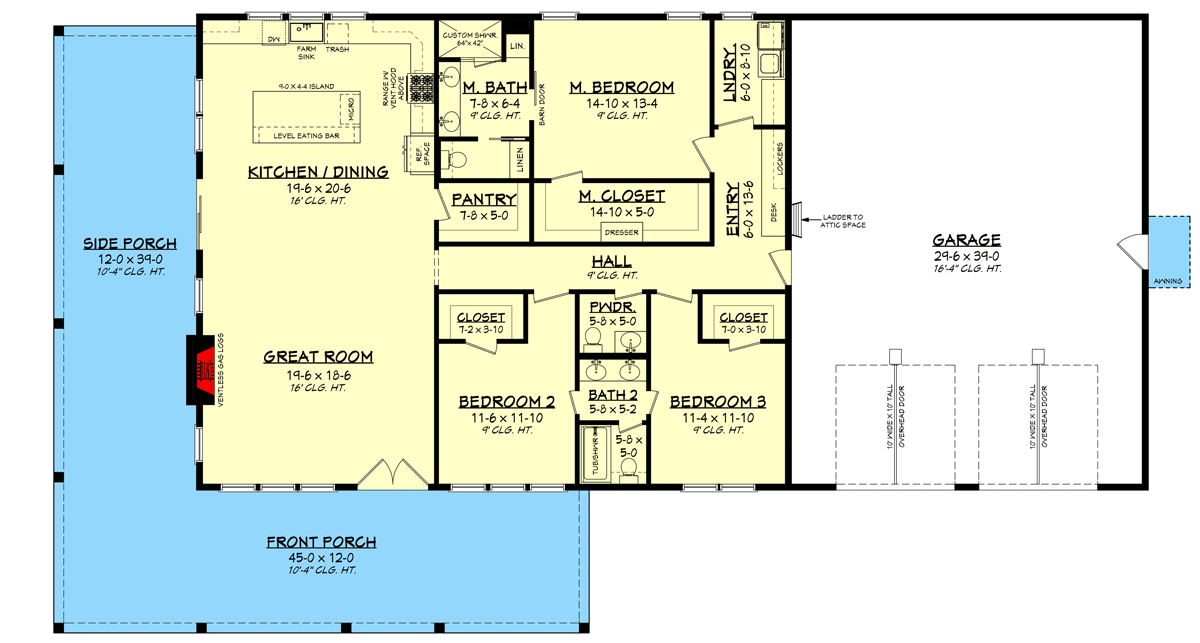
This 2,000-square-foot barndominium-style farmhouse combines rustic country charm with sleek modern function.
Featuring three bedrooms, two and a half bathrooms, and a stunning wraparound porch, this home offers the perfect balance of indoor comfort and outdoor living.

Whether it’s your forever home or a countryside retreat, this plan blends open design, practical layouts, and timeless farmhouse appeal.

Quick Specs at a Glance
- Total heated area: 2,000 sq ft
- Bedrooms: 3
- Bathrooms: 2.5
- Stories: 1
- Garage: 2-car attached or detached option
- Porch: wraparound design, approximately 8’–10′ deep
- Ceiling height: 10′ main level, with vaulted great room
- Footprint: approx. 80′ wide × 60′ deep
Exterior Design & Curb Appeal
The barndominium-inspired architecture makes this farmhouse truly stand out. Board-and-batten siding, metal roofing, and timber porch posts give it that bold, country-modern character.
The wraparound porch provides a 360° outdoor experience, ideal for rocking chairs, swings, and morning coffee views.

Open Great Room Concept
Step inside and you’ll be welcomed by a dramatic great room under a vaulted ceiling.
The open layout seamlessly connects the living, kitchen, and dining areas—perfect for family time, entertaining guests, or just enjoying the wide-open feel of farmhouse living.

Kitchen & Dining Highlights
The kitchen is the true heart of this home, equipped with a spacious island, ample cabinetry, and a generous walk-in pantry.
The open dining area sits nearby, overlooking the porch through wide glass doors that invite in natural light and extend dining outdoors on warm evenings.

Primary Suite
The primary suite offers quiet luxury with a vaulted ceiling, large windows, and private porch access.
The ensuite bathroom features double sinks, a freestanding soaking tub, and a walk-in shower.
A spacious walk-in closet completes the suite, offering organization and comfort in one retreat.

Secondary Bedrooms
Two additional bedrooms sit on the opposite side of the layout, maintaining privacy from the owner’s suite.
Each includes generous closet space and shares a full bathroom with dual vanities and a combined tub/shower. A nearby half bath serves guests conveniently off the main living area.

Outdoor Living
The wraparound porch is a defining feature of this plan. It’s not just for looks—it’s a functional, all-day relaxation zone. Whether you’re reading under the shade, enjoying a meal outside, or hosting gatherings, the porch makes outdoor living a natural extension of the home.

Garage & Utility Spaces
The design supports a 2-car attached or detached garage, depending on site needs. Inside, a mudroom entry helps keep things tidy, while a dedicated laundry room simplifies daily chores. These thoughtful touches make the plan practical as well as beautiful.

Flexibility & Function
With its single-level layout and open floor plan, this farmhouse fits many lifestyles—families, retirees, or anyone craving country-inspired simplicity. The wraparound porch, spacious kitchen, and split-bedroom arrangement make it both social and restful.
Estimated Building Cost (USD)
Actual cost varies by region, labor, and finish selections. A solid national estimate for this home ranges between $160 and $240 per sq ft. For 2,000 sq ft, expect a total build cost between $320,000 and $480,000. The porch and garage costs depend on local materials and customization options.

Who This Home Fits
This barndominium-style farmhouse is ideal for anyone seeking rustic charm with modern comfort. It suits families wanting open living, couples ready to downsize without sacrificing style, or owners building on country property with scenic surroundings.
Design Features You’ll Love
- Vaulted great room ceiling for added volume and light
- Split-bedroom design for privacy and quiet
- Large wraparound porch for true outdoor living
- Open kitchen with island and walk-in pantry
- Primary suite with spa-style bath and porch access
Interior Finish Ideas
- Mix white shiplap walls with warm natural wood tones.
- Use matte black fixtures for modern farmhouse contrast.
- Add barn-style sliding doors to accent interior transitions.
- Install rustic light fixtures—iron pendants or glass lanterns.
- Use wide-plank floors to emphasize openness and flow.
Conclusion
This 3-bedroom, 2.5-bath barndominium-style farmhouse combines spacious living with cozy warmth. The open floor plan, high ceilings, and full wraparound porch make it as beautiful as it is functional. Whether it’s built as a family home or a vacation getaway, this plan captures the true spirit of modern farmhouse living.











