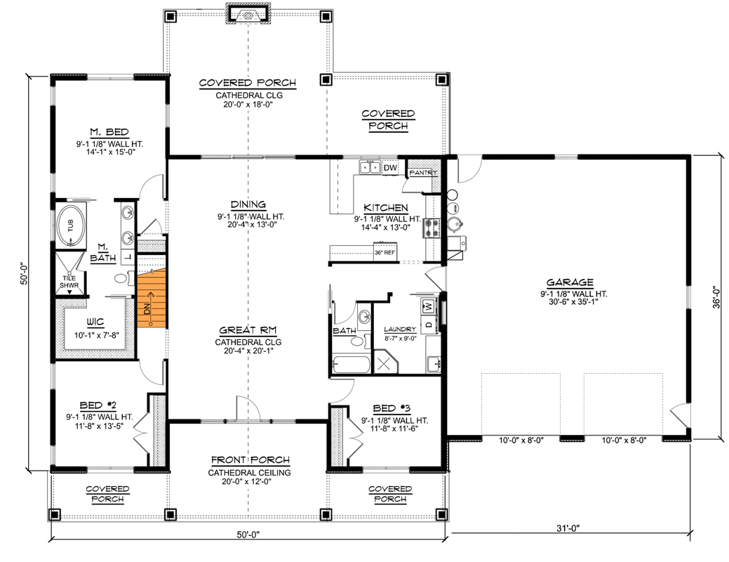
This 2,030-square-foot country craftsman home blends rustic charm with modern comfort.
Designed for one-level living, it features three bedrooms, two and a half bathrooms, a vaulted great room, and a two-car garage.
Its balanced layout and inviting style make it ideal for families or anyone seeking practical elegance in a cozy, open design.

Quick Specs at a Glance
- Total heated area: 2,030 sq ft
- Bedrooms: 3
- Bathrooms: 2.5
- Stories: 1
- Garage: 2-car, side entry (~515 sq ft)
- Outdoor living: covered front porch + rear patio or porch
- Ceiling heights: 9′ main, vaulted in great room
- Footprint: approx. 75′ wide × 65′ deep
Exterior & Curb Appeal
The exterior showcases timeless craftsman elements—tapered columns, exposed rafter tails, and stone accents—paired with soft siding and a welcoming front porch.
The balanced gables and natural materials create an inviting first impression that fits beautifully in both suburban and countryside settings.

Open & Airy Great Room
Step inside to a stunning vaulted great room with exposed beams and a cozy central fireplace.
Large windows flood the space with natural light while connecting it to the rear porch and backyard.
This open layout invites family gatherings, relaxation, and connection to nature.

Kitchen & Dining Design
The kitchen sits at the heart of the home, open to the great room for effortless entertaining.
A generous island provides workspace and seating, while the nearby walk-in pantry keeps essentials organized.
The dining area overlooks the rear porch—perfect for everyday meals or weekend dinners with friends.

Primary Suite Retreat
The primary suite occupies a private wing of the home, offering both comfort and tranquility. The bedroom features large windows and optional vaulted ceilings.
The ensuite bath includes dual vanities, a freestanding tub, a walk-in shower, and a large walk-in closet. The thoughtful layout ensures privacy and luxury without wasted space.

Secondary Bedrooms
Two additional bedrooms sit on the opposite side of the home, sharing a full hall bath. Each includes a roomy closet and easy access to shared living areas. The split-bedroom design enhances privacy and peace for all occupants.

Home Office or Flex Space
A flexible space near the entry can function as a home office, study, or reading nook. Its quiet placement and natural light make it ideal for working from home or pursuing hobbies in comfort.
Outdoor Living
The covered rear porch extends the living space outdoors. Whether you add lounge furniture, an outdoor dining set, or a fireplace, it’s a natural extension of the great room and ideal for year-round enjoyment. The front porch provides a warm welcome and space for morning coffee.
Garage & Utility Spaces
The side-entry 2-car garage includes plenty of space for vehicles, tools, and storage.
Inside, a mudroom entry helps organize daily essentials, while a nearby laundry room streamlines chores. The layout supports functionality for busy households without sacrificing comfort or aesthetics.

Energy & Efficiency
With its single-level layout and modest footprint, this home is energy-friendly by design. Using high-quality insulation, efficient HVAC systems, and double-glazed windows will help reduce long-term costs while maintaining comfort in every season.

Estimated Building Cost (USD)
Construction costs vary by location, materials, and finishes. On average, this type of home costs between $160 and $240 per sq ft. For 2,030 sq ft, the total estimated cost ranges from $324,800 to $487,200. Additional costs apply for upgraded finishes, outdoor kitchens, or expanded patios.

Who This Home Fits
This plan is perfect for families, retirees, or anyone who values single-level living and open design. The vaulted great room, functional kitchen, and spacious primary suite make it ideal for everyday comfort and occasional entertaining alike.
Smart Design Highlights
- Vaulted ceiling with beams in great room
- Split-bedroom layout for privacy
- Home office or flexible study space
- Walk-in pantry and spacious kitchen island
- Covered porches in front and back for year-round use
Interior Finish Ideas
- Combine warm wood tones with neutral walls for a true craftsman feel.
- Add stone or tile accents around the fireplace for rustic charm.
- Use black-framed windows for a modern twist on the traditional look.
- Opt for wide-plank wood flooring throughout for visual flow.
- Incorporate built-ins or wainscoting for authentic craftsman detail.
Conclusion
This one-story, 2,030-square-foot country craftsman house delivers the perfect balance of style and function. With a vaulted great room, split-bedroom design, flexible spaces, and inviting porches, it’s built for comfort, connection, and timeless appeal. Whether nestled in the countryside or the suburbs, this home feels both classic and refreshingly modern.












